




245 N Evans Street, Banning, CA 92220
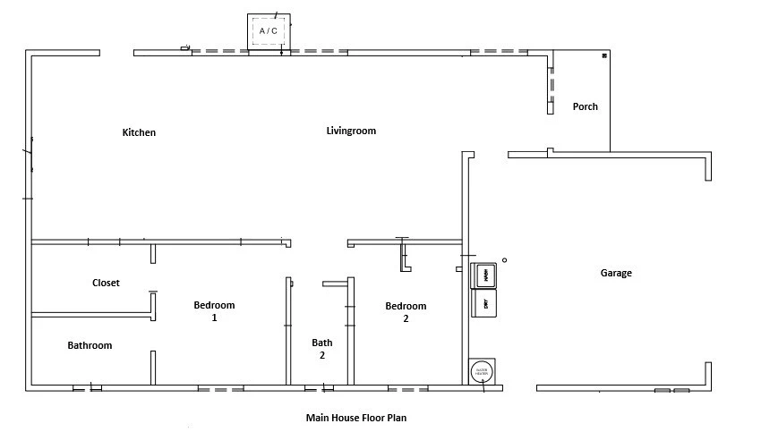
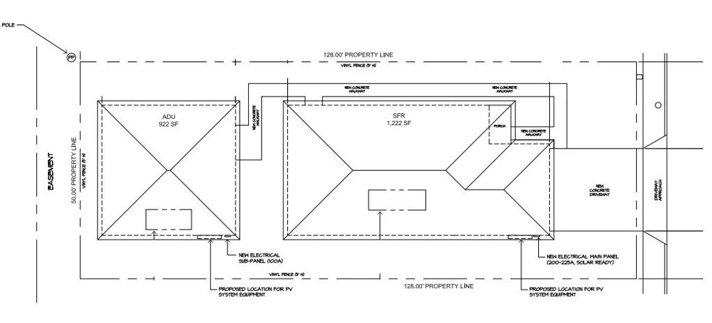
Your opportunity to own a BRAND new home plus an Accessory Dwelling unit (ADU)! The home is a 2 bedroom, 2 bath 1,222 sq ft home with a 2 car garage. Walk in closet in the main bedroom. The ADU is a 2 bedroom, 1 bath 922 sq ft ADU. Both are smartly designed for comfortable living! The kitchen and baths will come with White Shaker style cabinets and white quartz counter tops. The exterior walls are made with 2x6 lumber and filled with insulation. The windows are dual pane windows. New technology to keep your home cool in the summer and warm in the winter. The solar production system is fully paid for and will be owned by you with no payments to anyone for the power it produces. The home and ADU both have vinyl flooring throughout. They are currently under construction BUT we ARE now ready for showings. There is still work needed to be done to complete the project which is on going. Yet, you can come see it for yourself now to make it yours before someone else does.
Bedrooms
4
Bathrooms
3
Square Feet
2,144
Lot Size
6,970 sqft
Year Built
2025
Property Type
Duplex
Days on Market
169
HOA Fee
N/A
Garage Total
2
MLS #
IG25196997
Interior Features
Open Floorplan, Quartz Counters, Jack And Jill Bath, Walk In Closets
Flooring
Vinyl
Appliances
Electric Range, Electric Water Heater, Tankless Water Heater
Laundry
Electric Dryer Hookup, In Garage
Main Level Bedrooms
2
Main Level Bathrooms
2
Cooling
Central Air
Heating
Central
Total Parking Spaces
2
Garage Spaces
2
Attached Garage
Yes
Parking Features
Driveway, Garage Faces Front
Security
Fire Sprinkler System
Construction
Drywall, Stucco
Foundation
Slab
Roof
Composition
Direction Faced
East
Lot Features
Level, Rectangular Lot, Street Level
Sewer
Public Sewer
Water Source
Public
Suburban
$0
| Rating | School Name | ||
|---|---|---|---|
| No school data available for this area. | |||
Balanced market
Avg. time on market
This is a Balanced Market. Homes are selling at a moderate pace.
Flood Risk
Minimal — not in a FEMA flood zone
Wildfire Risk
Moderate — near wildland-urban interface
Heat Risk
Low — moderate summer temperatures
Earthquake Risk
Southern California seismic zone
Based on price, location, and features
Topfind Realty, DRE # 02240815, is a licensed real estate broker in California. Topfind Realty pledges to support the Fair Housing Act and adhere to Equal Housing Opportunity laws.
Copyright © 2026 Topfind Realty. All Rights Reserved.