




23502 Seaward Isle, Dana Point, CA 92629
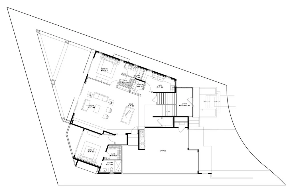
*NEW CONSTRUCTION* (TO BE COMPLETED FEBRUARY 2026) This shall be an exquisite custom "White Water, Sand, Ocean View" home located in the exclusive 24-hour guard gated Oceanfront Community of Niguel Shores. This custom residence to be built by "Nicholson Companies" of Newport Beach contains approximately 4624 sqft, 4 bedroom, 4 full bath & 2 "1/2 baths", in addition, this custom-built home contains an approximate 500sqft "California Room". This residence is designed to maximize Southern California lifestyle with “indoor/outdoor“ living & stunning ocean views! This open & spacious floorplan will feature a “great room“ with uninterrupted views through a wall of multi panel, sliding glass doors!… The “main floor master suite “possesses outstanding, ocean views, contemporary fireplace, generously sized walk-in closet, spa-like bath, freestanding soaking tub, Kohler faucets and toilets, and a “frameless clear glass shower enclosure". The Gourmet “center island kitchen” will feature “Miele” appliances inclusive of refrigerator & freezer, 48” 8-burner gas range with integrated microwave and warming drawer, dishwasher as well as “quartz "counters, undercabinet lighting, and custom cabinetry with selected pulls from Emtek! Additional interior features will include soffit & elevated ceilings, wire-brushed white oak engineered hardwood flooring throughout, hardwood stair treads & risers with custom steel or wood rail system, 8-foot solid core interior doors, 6-inch baseboards… Custom elevator, a second contemporary linear fireplace in the living/dining area, interior sprinkler system, Epoxy covered coating & prep for "e-charger" in 3-car garage, CAT7 ethernet wire, professionally designed DCS security system with touchscreen panels & security sensors throughout, energy efficient HVAC air conditioning system, HEPA air filtration system, air quality sensor technology, smartphone app technology, reverse osmosis drinking water & whole home water filtration system. Exterior features will include a smooth stucco exterior, custom oversize front door system, with complimenting garage doors. Exterior landscaping will be inclusive of professional planting of all yard areas, automatic irrigation & drainage system, custom landscape lighting package, and a 36-inch built-in barbecue. This custom built residence will share a cul-de-sac location with only 3 additional homes. Walking distance to the Pacific Ocean & surfing breaks are minutes away! Truly an incredible opportunity!!
Bedrooms
4
Bathrooms
6
Square Feet
4,624
Lot Size
5,270 sqft
Year Built
2025
Property Type
Single Family Residence
Days on Market
116
HOA Fee
$373/mo
Garage Total
3
MLS #
OC25247092
Interior Features
Breakfast Bar, Separate Formal Dining Room, Eat In Kitchen, High Ceilings, Quartz Counters, Main Level Primary, Primary Suite, Walk In Closets
Flooring
Wood
Fireplace
Family Room, Primary Bedroom
Appliances
Dishwasher, Electric Oven, Freezer, Gas Range, Microwave, Warming Drawer
Laundry
Washer Hookup, Electric Dryer Hookup, Gas Dryer Hookup, Inside, Laundry Room
Main Level Bedrooms
2
Main Level Bathrooms
3
Cooling
Central Air, Energy Star Qualified Equipment
Heating
Central
Total Parking Spaces
3
Garage Spaces
3
Attached Garage
Yes
Parking Features
Direct Access, Driveway, Garage
Patio & Porch
Covered, Deck
Security
Carbon Monoxide Detectors, Fire Detection System, Gated With Guard, Gated Community, Gated With Attendant, Item24 Hour Security, Smoke Detectors, Security Lights
Construction
Stucco
Roof
Flat
Lot Features
Landscaped, Level, Sprinkler System, Street Level
Pool Features
None, Association
Sewer
Public Sewer
Water Source
Public
Clubhouse, Controlled Access, Sport Court, Fitness Center, Management, Outdoor Cooking Area, Other Courts, Barbecue, Pickleball, Pool, Guard, Spa Hot Tub, Security, Trails
Curbs, Gutters, Street Lights, Sidewalks, Gated
$0
| Rating | School Name | ||
|---|---|---|---|
| No school data available for this area. | |||
Balanced market
Avg. time on market
This is a Balanced Market. Homes are selling at a moderate pace.
Flood Risk
Minimal — not in a FEMA flood zone
Wildfire Risk
Moderate — near wildland-urban interface
Heat Risk
Low — moderate summer temperatures
Earthquake Risk
Southern California seismic zone
Based on price, location, and features
Topfind Realty, DRE # 02240815, is a licensed real estate broker in California. Topfind Realty pledges to support the Fair Housing Act and adhere to Equal Housing Opportunity laws.
Copyright © 2026 Topfind Realty. All Rights Reserved.