




24722 Del Prado 206, Dana Point, CA 92629
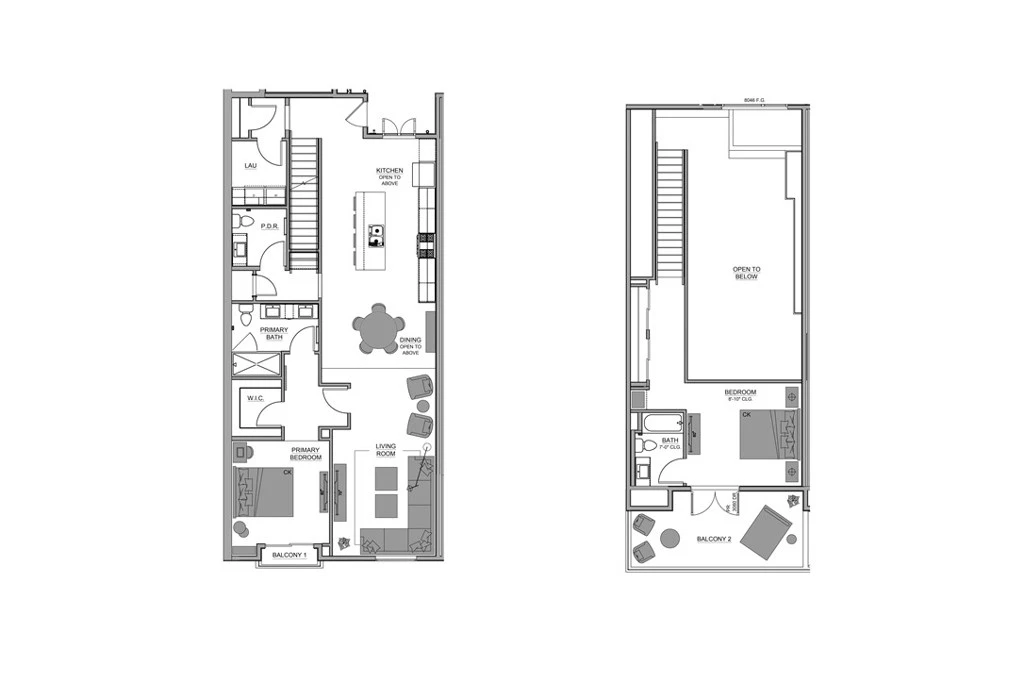
Find your sanctuary by the sea at Del Prado Place, Dana Point’s premier new development featuring 18 boutique residential units in the heart of the Lantern District and slated for completion in December 2025. Set above four ground-floor commercial spaces, this mixed-use development presents a vibrant urban-coastal lifestyle, with residences ranging from approximately 1,236 to 1,902 SF, most with private outdoor space. Designed by Studio Mosaic Interior Design, each unit offers two secure garage parking spaces with EV charging, dedicated storage closet, and one of six curated interior design schemes. Unit 206 features an elevated urban palette — a striking juxtaposition of geometric and organic elements, warm woods, and moody cool tones. This two-level residence includes two bedrooms, two-and-one-half bathrooms, approximately 1,836 SF of thoughtfully designed living space, and about 235 SF of private deck. Standout features include peek-a-boo ocean views from the upper level, a dedicated laundry room, European-style cabinetry, quartz waterfall-edge countertops and center island, Bosch and GE appliances, and wide-plank laminate vinyl plank flooring throughout. Retreat to the primary suite, complete with a generous walk-in closet, dual Della Terra quartz-topped vanities, and a balcony perfect for taking in the fresh coastal breezes. Enjoy the ultimate lock-and-leave lifestyle, ideal as a primary residence or low-maintenance vacation home, just two blocks from Heritage Park and moments from surfing at Doheny Beach, Dana Point Harbor, scenic Headlands trails, and Monarch Beach Golf Links & Resort.
Bedrooms
2
Bathrooms
3
Square Feet
1,836
Year Built
2025
Property Type
Condominium
Days on Market
295
HOA Fee
$802/mo
Garage Total
0
MLS #
OC25078857
Interior Features
Balcony, High Ceilings, Quartz Counters, Recessed Lighting, Storage, Bedroom On Main Level, Main Level Primary, Walk In Closets
Flooring
Vinyl
Appliances
Convection Oven, Dishwasher, Energy Star Qualified Appliances, Electric Cooktop, Electric Oven, Range Hood
Laundry
Inside, Laundry Room
Main Level Bedrooms
1
Main Level Bathrooms
2
Cooling
Central Air
Heating
Central
Parking Features
Assigned
Patio & Porch
Deck
Lot Features
Sloped Down
Sewer
Public Sewer
Water Source
Public
Management
Curbs, Park, Sidewalks, Urban
$0
| Rating | School Name | ||
|---|---|---|---|
| No school data available for this area. | |||
Balanced market
Avg. time on market
This is a Balanced Market. Homes are selling at a moderate pace.
Flood Risk
Minimal — not in a FEMA flood zone
Wildfire Risk
Moderate — near wildland-urban interface
Heat Risk
Low — moderate summer temperatures
Earthquake Risk
Southern California seismic zone
Based on price, location, and features
Topfind Realty, DRE # 02240815, is a licensed real estate broker in California. Topfind Realty pledges to support the Fair Housing Act and adhere to Equal Housing Opportunity laws.
Copyright © 2026 Topfind Realty. All Rights Reserved.