




0 5th Street, Desert Hot Springs, CA 92240
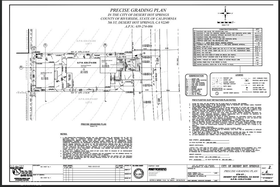
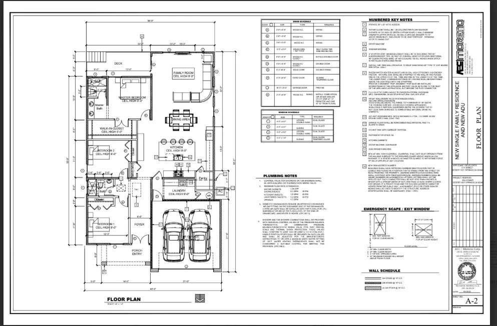
New construction opportunity in Desert Hot Springs! This planned home will offer approximately 1,781 sq. ft. of living space with a well-designed floor plan. Plans are complete and ready for submission to the city, providing a great opportunity for a buyer or investor to move the project forward. The main home will feature a spacious master bedroom with a walk-in closet and private master bathroom, plus two additional bedrooms and one full bathroom. The layout includes a family room, a kitchen with a pantry closet, and a dedicated laundry room. A two-car garage provides convenient parking and additional storage. Additional features include a new front porch entry, a new deck, and a detached 768 sq. ft. ADU in the backyard, offering excellent potential for rental income, guest quarters, or extended family living. Located on a vacant lot in the growing city of Desert Hot Springs, this is a great opportunity to build and own a brand-new property in the Coachella Valley.
Lot Size
6,534 sqft
Days on Market
0
HOA Fee
N/A
MLS #
IV26058045
Lot Features
Street Level
Rural
$0
| Rating | School Name |
|---|---|
9 | GreatSchools High (Demo) public School • ratio 22:1 |
7 | Valley View Elementary (Demo) public School • ratio 18:1 |
6 | Lincoln Middle School (Demo) public School • ratio 20:1 |
NR | St. Mary Example Academy (Demo) private School • ratio 12:1 |
Balanced market
Avg. time on market
This is a Balanced Market. Homes are selling at a moderate pace.
Based on price, location, and features
Topfind Realty, DRE # 02240815, is a licensed real estate broker in California. Topfind Realty pledges to support the Fair Housing Act and adhere to Equal Housing Opportunity laws.
Copyright © 2026 Topfind Realty. All Rights Reserved.