




0 Calle Rancho Vista, Encinitas, CA 92024
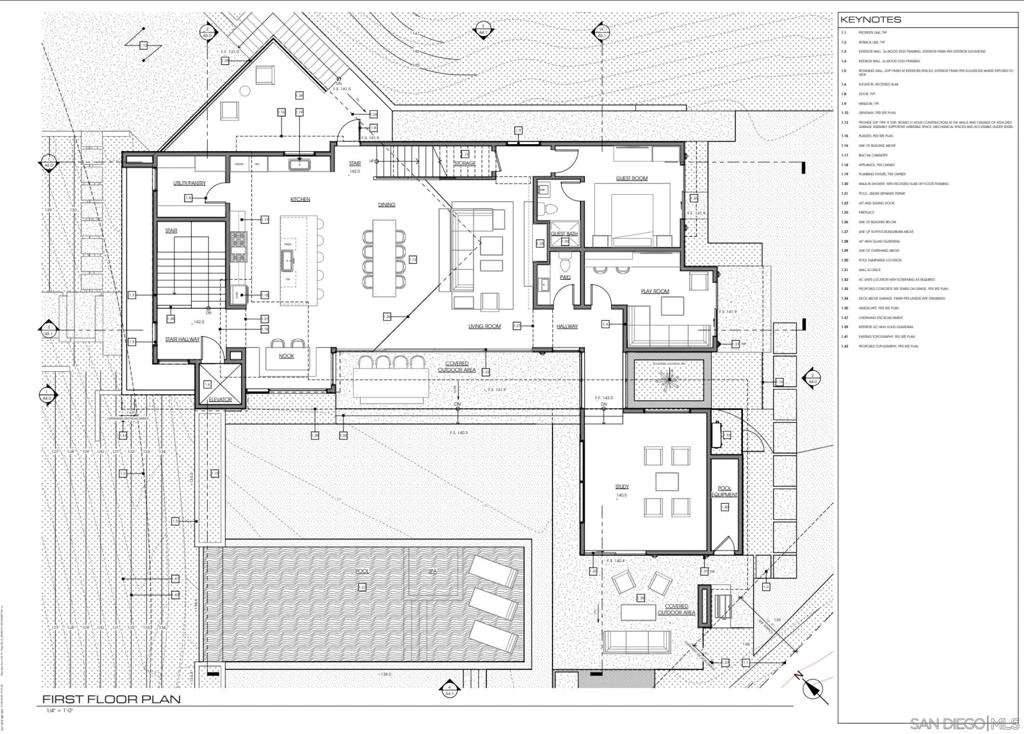
MOTIVATED SELLER. Seller is in escrow on a different property and has a tight window to close. Seller will look at all offers as long as his current up-leg property is in the picture. One of the Last Remaining Lots in Olivenhain – Canyon Views | Prime Location. Rare opportunity to build a custom estate on one of the final available lots in a private Olivenhain cul-de-sac, just 10 minutes from Cardiff Beach. This exceptional property offers stunning canyon views and over three years of completed work with the City of Encinitas. The proposed design features a 4,600 sq ft custom home with a 1,000 sq ft subterranean 4-car garage, 4 bedrooms (plus optional 5th), office, study, private elevator, oversized walk-in pantry, 250 sq ft primary closet, and a spacious backyard with a front-facing infinity edge pool. Progress highlights: Soils and ecological reports completed, grading and slope evaluations done, fire, water, and sewer services evaluated at the street Ready to enter structural and construction "doc" phase. With just one lot left in this coveted neighborhood, this is a rare chance to create a signature home in one of North County’s most desirable communities.
Bathrooms
0
Lot Size
37,897 sqft
Days on Market
178
HOA Fee
N/A
MLS #
250040119SD
Lot Features
Steep Slope
$0
| Rating | School Name | ||
|---|---|---|---|
| No school data available for this area. | |||
Balanced market
Avg. time on market
This is a Balanced Market. Homes are selling at a moderate pace.
Flood Risk
Minimal — not in a FEMA flood zone
Wildfire Risk
Moderate — near wildland-urban interface
Heat Risk
Low — moderate summer temperatures
Earthquake Risk
Southern California seismic zone
Based on price, location, and features
Topfind Realty, DRE # 02240815, is a licensed real estate broker in California. Topfind Realty pledges to support the Fair Housing Act and adhere to Equal Housing Opportunity laws.
Copyright © 2026 Topfind Realty. All Rights Reserved.