




5725 Enfield Avenue, Encino, CA 91316
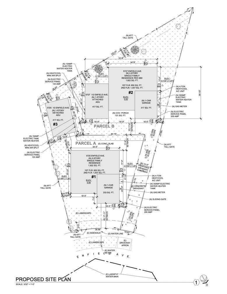
Calling all developers and investors—this is a rare, shovel-ready opportunity at 5725 Enfield Ave, featuring a flat 9,549 sq ft lot already subdivided into two parcels with approved plans to build a total of four units. Parcel A (5725 N Enfield Ave) offers approved plans for a 4-bedroom, 3.5-bath single-family home with approximately 1,992 sq ft and a 1-car attached garage, along with a separately permitted detached ADU at 5725 ½ N Enfield Ave featuring 1 bedroom, 1 bathroom, and 417 sq ft on a 4,384 sq ft lot. Parcel B (5727 Enfield Ave) is a vacant lot with approved plans for another 4-bedroom, 3.5-bath single-family residence of approximately 1,992 sq ft with a 1-car attached garage, plus an attached 1-bedroom, 1-bath ADU at 5727½ N Enfield Ave, totaling 5,151 sq ft. This fully entitled project allows a developer to skip the lengthy approval process and move straight into construction, offering excellent upside through new construction, ADU income potential, or resale, making it an exceptional investment in an established Valley neighborhood. This property will be sold with 5727 Enfield Ave. to one buyer - must purchase both parcels.
Bedrooms
2
Bathrooms
1
Square Feet
806
Lot Size
4,384 sqft
Year Built
1949
Property Type
Single Family Residence
Days on Market
32
HOA Fee
N/A
Garage Total
0
MLS #
SR26033822
Main Level Bedrooms
2
Main Level Bathrooms
1
Sewer
Public Sewer
Water Source
Public
Curbs, Street Lights, Sidewalks
$0
| Rating | School Name |
|---|---|
9 | GreatSchools High (Demo) public School • ratio 22:1 |
7 | Valley View Elementary (Demo) public School • ratio 18:1 |
6 | Lincoln Middle School (Demo) public School • ratio 20:1 |
NR | St. Mary Example Academy (Demo) private School • ratio 12:1 |
Balanced market
Avg. time on market
This is a Balanced Market. Homes are selling at a moderate pace.
Based on price, location, and features
Topfind Realty, DRE # 02240815, is a licensed real estate broker in California. Topfind Realty pledges to support the Fair Housing Act and adhere to Equal Housing Opportunity laws.
Copyright © 2026 Topfind Realty. All Rights Reserved.