1153 Hubbard Ave, Escondido, CA 92027
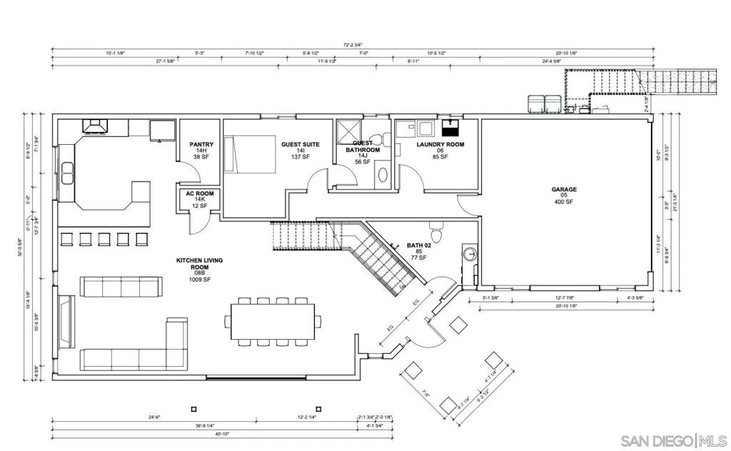
Calling All Developers and individuals looking to build their dream home—Your Opportunity Awaits! Fully approved building plans, make this a unique opportunity to bring your vision to life on this extraordinary 1-acre parcel in Escondido, situated in a well-established neighborhood with VIEW and easy access to major roads, schools, and local amenities. Don't miss this rare opportunity!
Bathrooms
0
Lot Size
35,719.2 sqft
Days on Market
36
HOA Fee
N/A
MLS #
260001471SD
$0
| Rating | School Name | ||
|---|---|---|---|
| No school data available for this area. | |||
Balanced market
Avg. time on market
This is a Balanced Market. Homes are selling at a moderate pace.
Flood Risk
Minimal — not in a FEMA flood zone
Wildfire Risk
Moderate — near wildland-urban interface
Heat Risk
Low — moderate summer temperatures
Earthquake Risk
Southern California seismic zone
Based on price, location, and features
Topfind Realty, DRE # 02240815, is a licensed real estate broker in California. Topfind Realty pledges to support the Fair Housing Act and adhere to Equal Housing Opportunity laws.
Copyright © 2026 Topfind Realty. All Rights Reserved.