




0 Vista Del Valle, Hemet, CA 92544
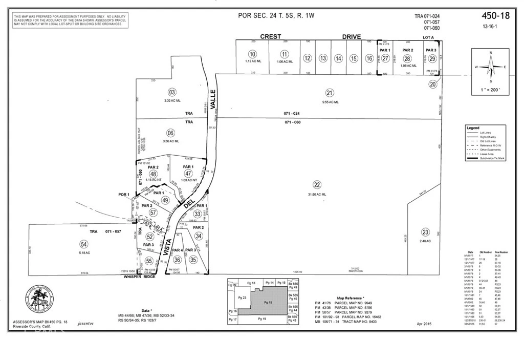
Rare opportunity to acquire approximately 42 acres comprised of two adjoining parcels (9.55 acres and 31.8 acres) in one of Hemet’s most desirable and exclusive hillside neighborhoods. Located just south of Crest Drive, between Vista Del Valle to the west and Meridian Street to the east, this exceptional property is surrounded by custom estate homes valued at $750,000 and above. The land features lush open grasslands, gently rolling hills, and a seasonal creek, offering a serene natural setting with panoramic potential. Historically used as a walnut grove nearly a century ago, remnants of original cement aqueducts and flumes remain on site, adding unique character and historical charm. Zoned W-1, this property presents outstanding potential for a luxury custom estate, equestrian ranch, boutique residential development, or other creative vision. Enjoy a private, rural atmosphere while remaining just minutes from town amenities and directly below the scenic Simpson Park area. Opportunities of this size and location in the Crest Drive corridor are extremely rare. A must-see property for developers, investors, or buyers seeking a premier estate setting. Property sits at the entrance to the proposed Gibbel Flats development and is also in the path of the city of Hemet annexation. To the east about 2 miles the Citrus project will be adding thousands of new homes to the east side of the valley making this property even more desirable.
Lot Size
415,998 sqft
Days on Market
0
HOA Fee
N/A
MLS #
SW26015604
Lot Features
Horse Property, Irregular Lot, Lot Over40000 Sqft, Rocks, Street Level, Value In Land
Biking, Foothills, Hiking, Horse Trails, Rural, Suburban, Valley
$0
| Rating | School Name | ||
|---|---|---|---|
| No school data available for this area. | |||
Balanced market
Avg. time on market
This is a Balanced Market. Homes are selling at a moderate pace.
Flood Risk
Minimal — not in a FEMA flood zone
Wildfire Risk
Moderate — near wildland-urban interface
Heat Risk
Low — moderate summer temperatures
Earthquake Risk
Southern California seismic zone
Based on price, location, and features
Topfind Realty, DRE # 02240815, is a licensed real estate broker in California. Topfind Realty pledges to support the Fair Housing Act and adhere to Equal Housing Opportunity laws.
Copyright © 2026 Topfind Realty. All Rights Reserved.