




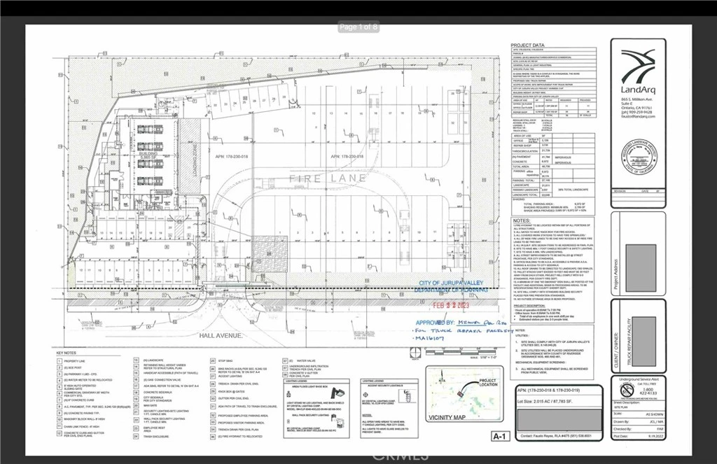
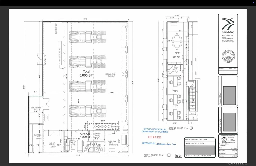
2725 Hall Avenue, Jurupa Valley, CA 92509
An amazing opportunity to own 2.02 Acres of Entitled Land with Approved and Permitted Plans. The property is a Manufacture - Service - Commercial zoned 2.02 Acre lot with utilities and approved plans for a Trucking Service Building. This was designed, planned and permitted for up to 20 full size Big Rigs and Trailers, in addition to 21 front tractor units - as well as a 5,685 sqft Service building that can have 4 tractor units worked on at once. In addition, it was also planned for a 896 sqft office, meeting room, Full Bathroom and break area on the second floor. This lot consists of two parcel APN's (#178-230-019 and #178-230-018), very near the 60 freeway and a few miles from the 91 freeway and 215 freeway. Please view the attached documentation(pictures) and reach listing agents with any other questions in regards to zoning, plans and permits.
Lot Size
87,991.2 sqft
Days on Market
303
HOA Fee
N/A
MLS #
OC25098420
Fencing
Chain Link, Wrought Iron
Lot Features
Lot Over40000 Sqft, Level, Flat
Water Source
Public
Rural
$0
| Rating | School Name |
|---|---|
9 | GreatSchools High (Demo) public School • ratio 22:1 |
7 | Valley View Elementary (Demo) public School • ratio 18:1 |
6 | Lincoln Middle School (Demo) public School • ratio 20:1 |
NR | St. Mary Example Academy (Demo) private School • ratio 12:1 |
Balanced market
Avg. time on market
This is a Balanced Market. Homes are selling at a moderate pace.
Based on price, location, and features
Topfind Realty, DRE # 02240815, is a licensed real estate broker in California. Topfind Realty pledges to support the Fair Housing Act and adhere to Equal Housing Opportunity laws.
Copyright © 2026 Topfind Realty. All Rights Reserved.