




2442 Cross Street, La Crescenta, CA 91214
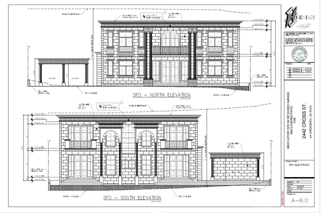
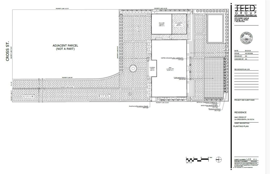
Prime La Crescenta development opportunity! Vacant land offered with approved plans for a 4,260 sq ft custom home, including garage, patio, pool, grading, and retaining walls. Plans have completed plan check and are ready for permit issuance once remaining standard fees and permit extensions are paid. Permit extensions are available and will carry approvals into Spring 2026 (final extension period). Start with grading and retaining wall permits, then proceed with home construction after inspection approval. A great chance to save months of design and review time and build in a sought-after La Crescenta location.
Lot Size
13,355 sqft
Days on Market
17
HOA Fee
N/A
MLS #
GD26011327
Water Source
Public
Biking, Curbs, Foothills, Street Lights, Suburban, Sidewalks
$0
| Rating | School Name | ||
|---|---|---|---|
| No school data available for this area. | |||
Balanced market
Avg. time on market
This is a Balanced Market. Homes are selling at a moderate pace.
Based on price, location, and features
Topfind Realty, DRE # 02240815, is a licensed real estate broker in California. Topfind Realty pledges to support the Fair Housing Act and adhere to Equal Housing Opportunity laws.
Copyright © 2026 Topfind Realty. All Rights Reserved.