


3213 Mills Avenue, La Crescenta, CA 91214
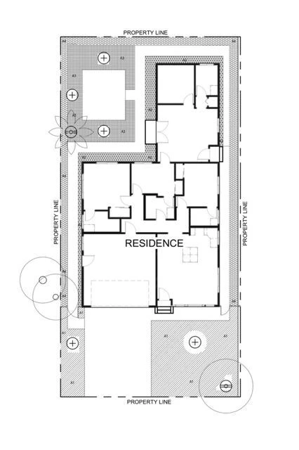
LAND VALUE INCLUDING PLANNING AND PERMITS FOR NEW HOME- A great opportunity to build your forever home. The existing structure on the property is not livable, this sale includes already permitted plans for a 1,950sqft single-story home with an attached garage. Don't miss the opportunity to create your dream home in a great city!
Lot Size
4,979 sqft
Days on Market
0
HOA Fee
N/A
MLS #
PF26062488
Lot Features
Zero To One Unit Acre, Back Yard
Water Source
Public
Biking, Dog Park, Foothills, Park, Sidewalks
$0
| Rating | School Name | ||
|---|---|---|---|
| No school data available for this area. | |||
Balanced market
Avg. time on market
This is a Balanced Market. Homes are selling at a moderate pace.
Based on price, location, and features
Topfind Realty, DRE # 02240815, is a licensed real estate broker in California. Topfind Realty pledges to support the Fair Housing Act and adhere to Equal Housing Opportunity laws.
Copyright © 2026 Topfind Realty. All Rights Reserved.