




0 Avenue E, Lancaster, CA 93536
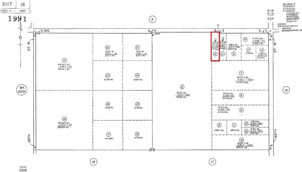
Seller Financing Available. Zoned Light Industrial and in Fox Field Master Plan. Investor Opportunity--Do Not Delay, Start Investing in Land! This well priced 2.39 acre parcel is in the City of Lancaster and is already zoned Light Industrial. This parcel offers legal access and road frontage along Avenue E. Electric power poles located just east of the property along 40th west and is adjacent to an 80ac parcel. Future development site is within the City of Lancaster's Fox Field Industrial Corridor Specific Plan, North of the General William J. Fox Airfield. The Fox Field Industrial Corridor is a premier 8,200-acre master-planned area hosting major distribution centers, aerospace firms, and manufacturing facilities. Large scale developments planned in the immediate vicinity of this parcel include a new BYD bus factory and the 1.2 million sqft ''Northpoint'' warehouse developments. The Fox airfield supports several major operations, including a U. S. Forest Service fixed-wing airtanker and helicopter base, making it a key regional hub for aerial firefighting and suppression efforts during fire season. The surrounding area features a mix of industrial uses and established residential housing, suggesting potential versatility in future use (buyer to verify). Conveniently located near Highway 138 and the 14 Freeway, the property offers easy access to services, and employment centers of both Lancaster and Palmdale.
Lot Size
104,108 sqft
Days on Market
22
HOA Fee
N/A
MLS #
SR26046449
Lot Features
Rectangular Lot
Rural
$0
| Rating | School Name | ||
|---|---|---|---|
| No school data available for this area. | |||
Balanced market
Avg. time on market
This is a Balanced Market. Homes are selling at a moderate pace.
Based on price, location, and features
Topfind Realty, DRE # 02240815, is a licensed real estate broker in California. Topfind Realty pledges to support the Fair Housing Act and adhere to Equal Housing Opportunity laws.
Copyright © 2026 Topfind Realty. All Rights Reserved.