




817 Chestnut Avenue, Los Angeles, CA 90042
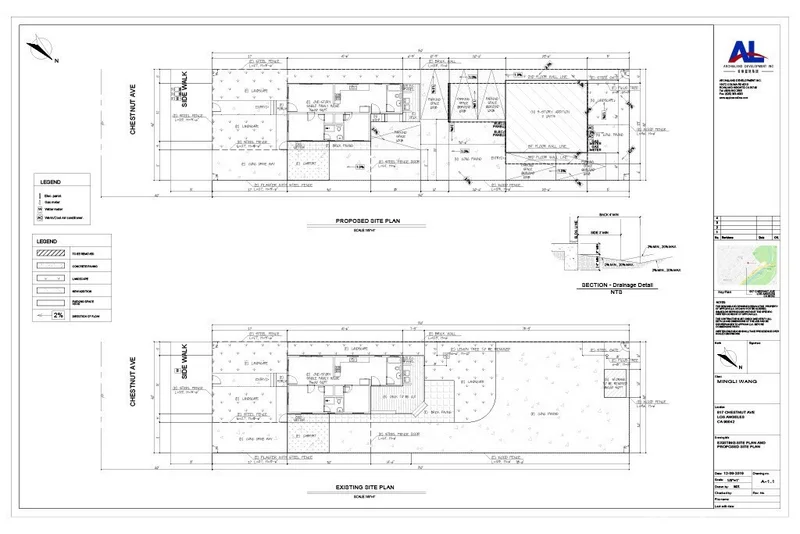
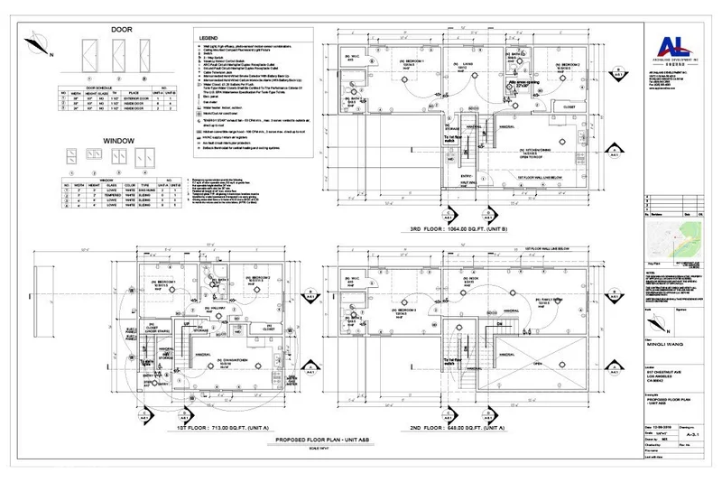
Turn key condition house + development potential = Living in a dream house while building a dream! One of the closest suburb from Downtown LA, the historic Garvanza / Highland Park area is young professional, trend setter's delight! Move in ready! Remodeled interior, wooden fence and long driveway with wooden car port. Yet it gets better.... owner/user development opportunity in your own backyard. Rare RD2 zoning, potentially 3 units allowed on this lot. An architectural plan was drawn in 2019, to propose 2 more units in the spacious back lot. Current house is 2 bed 2 bath, engineered wood floor throughout, granite countertop, stainless steel appliances, plenty of cabinet space. Newer dual pane windows great for energy efficiency. Wooden back patio extends outdoor living in the huge backyard with fruit trees. Many newly constructed properties added modern vibes to this street. Located in between downtown Los Angeles and Pasadena, this trendy neighborhood is right next to South Pasadena, where well maintained estate properties and dining and shopping options are the signature of this vibrant community. Easy commute, convenient access to freeways (110 Fwy, 5 Fwy, 210 and 134). Walking distance to park, elementary school and bus stop, Dash. Close to Arroyo Seco Golf Course and other entertainment in Pasadena such as restaurants, shops, art galleries. Also, close to Rose Bowl, Eagle Rock, Dodger Stadium, Occidental College, China Town, and East LA. Car port in front drive way and backyard.
Bedrooms
2
Bathrooms
2
Square Feet
756
Lot Size
6,000 sqft
Year Built
1925
Property Type
Single Family Residence
Days on Market
10
HOA Fee
N/A
Garage Total
0
MLS #
SB26003697
Interior Features
All Bedrooms Down, Bedroom On Main Level
Appliances
Dishwasher
Laundry
Outside
Main Level Bedrooms
2
Main Level Bathrooms
2
Cooling
Electric, Wall Window Units
Lot Features
Back Yard
Sewer
Public Sewer
Water Source
Public
Suburban
$0
| Rating | School Name |
|---|---|
9 | GreatSchools High (Demo) public School • ratio 22:1 |
7 | Valley View Elementary (Demo) public School • ratio 18:1 |
6 | Lincoln Middle School (Demo) public School • ratio 20:1 |
NR | St. Mary Example Academy (Demo) private School • ratio 12:1 |
Balanced market
Avg. time on market
This is a Balanced Market. Homes are selling at a moderate pace.
Based on price, location, and features
Topfind Realty, DRE # 02240815, is a licensed real estate broker in California. Topfind Realty pledges to support the Fair Housing Act and adhere to Equal Housing Opportunity laws.
Copyright © 2026 Topfind Realty. All Rights Reserved.