




310 Tait Avenue, Los Gatos, CA 95030
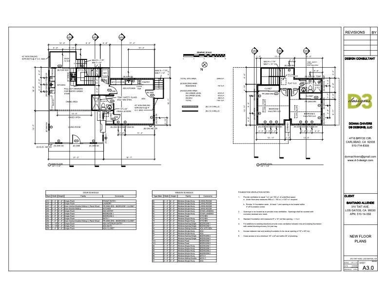
In the Heart of Almond Grove this charming 1 bed, 1 bath home (764 sq ft on a 2,544 sq ft lot) offers a rare chance to create a custom 1,439 sqft two-story residence with an ADU in highly coveted Almond Grove, just blocks from cafes, restaurants, boutiques, theatre, Bachman Park, and top-rated Los Gatos schools. Set within a historic neighborhood renowned for its Victorian-era homes, this property offers the ideal blend of timeless charm, downtown convenience, and redevelopment potential. Now as a no cost option this Premier Build-Ready Addition & ADU Opportunity comes with engineering, soils reports, and related technical work that are complete, and plans have received Historic Architecture & Site Review Committee approval. Building plans are near final approval, allowing the next owner to move directly into the permit process and begin construction confidently avoiding typical delays in historic neighborhoods. Proposed plans envision a spacious, open-concept gourmet kitchen, vaulted ceilings in the living room, two generous upstairs bedrooms with a bath, and a versatile downstairs ADU perfect for a private primary suite, guest quarters, or supplemental studio space rental income. A truly rare opportunity to build in one of Los Gatos most iconic locations.
Bedrooms
1
Bathrooms
1
Square Feet
764
Lot Size
2,544 sqft
Year Built
1918
Property Type
Single Family Residence
Days on Market
60
HOA Fee
N/A
Garage Total
0
MLS #
ML82029870
Interior Features
Breakfast Bar
Flooring
Tile, Wood
Fireplace
Living Room
Appliances
Dishwasher, Gas Cooktop, Disposal, Refrigerator, Range Hood
Heating
Fireplaces
Total Parking Spaces
2
Parking Features
Off Street
Foundation
Concrete Perimeter
Roof
Composition
Lot Features
Level
Sewer
Public Sewer
Water Source
Public
$0
| Rating | School Name |
|---|---|
9 | GreatSchools High (Demo) public School • ratio 22:1 |
7 | Valley View Elementary (Demo) public School • ratio 18:1 |
6 | Lincoln Middle School (Demo) public School • ratio 20:1 |
NR | St. Mary Example Academy (Demo) private School • ratio 12:1 |
Balanced market
Avg. time on market
This is a Balanced Market. Homes are selling at a moderate pace.
Based on price, location, and features
Topfind Realty, DRE # 02240815, is a licensed real estate broker in California. Topfind Realty pledges to support the Fair Housing Act and adhere to Equal Housing Opportunity laws.
Copyright © 2026 Topfind Realty. All Rights Reserved.