




32224 Emerald, Lucerne Valley, CA 92356
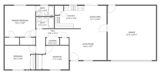
New construction 3 bedroom 2 bathroom 500 square foot garage large kitchen with walk in pantry indoor laundry and more.
Bedrooms
3
Bathrooms
2
Square Feet
1,270
Lot Size
28,000 sqft
Year Built
2026
Property Type
Single Family Residence
Days on Market
39
HOA Fee
N/A
Garage Total
2
MLS #
HD26018464
Interior Features
Cathedral Ceilings, Pantry, Quartz Counters, Recessed Lighting, All Bedrooms Down
Laundry
Washer Hookup, Gas Dryer Hookup, Laundry Closet
Main Level Bedrooms
3
Main Level Bathrooms
2
Cooling
Central Air
Total Parking Spaces
2
Garage Spaces
2
Attached Garage
Yes
Parking Features
Driveway, Garage
Patio & Porch
Concrete, Front Porch
Security
Fire Rated Drywall, Fire Sprinkler System
Construction
Drywall, Stucco
Roof
Flat Tile
Lot Features
Zero To One Unit Acre
Sewer
Septic Tank
Water Source
Private
Rural
$0
| Rating | School Name | ||
|---|---|---|---|
| No school data available for this area. | |||
Balanced market
Avg. time on market
This is a Balanced Market. Homes are selling at a moderate pace.
Flood Risk
Minimal — not in a FEMA flood zone
Wildfire Risk
Moderate — near wildland-urban interface
Heat Risk
Low — moderate summer temperatures
Earthquake Risk
Southern California seismic zone
Based on price, location, and features
Topfind Realty, DRE # 02240815, is a licensed real estate broker in California. Topfind Realty pledges to support the Fair Housing Act and adhere to Equal Housing Opportunity laws.
Copyright © 2026 Topfind Realty. All Rights Reserved.