




3836 State Highway 49 S, Mariposa, CA 95338
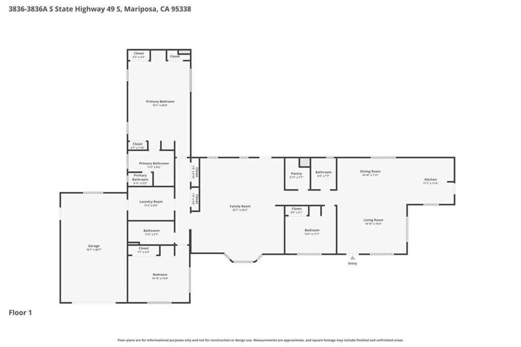
This is not a typical Mariposa property — it is a fully developed live/work opportunity with infrastructure that is incredibly rare in our market. Located on 2.87 acres with Highway 49 frontage in the Bootjack Town Planning Area, this property includes 6 total units and an extraordinary 9,912 square feet under roof — a level of covered space seldom seen in Mariposa County. The 2,600 sq ft main home offers comfortable residential living, while the additional structures create a substantial operational footprint, including a 2,880 sq ft office/business building, a 2,000 sq ft car shop, additional shop buildings, garages, and a potential 936 sq ft ADU. Ideal for contractors, tradespeople, automotive specialists, fabricators, or entrepreneurs seeking visibility, flexibility, and room to expand, the Highway frontage and Bootjack location support a variety of potential business uses (buyer to verify with county). Live on-site, operate your business, create rental income, or design a customized live/work setup tailored to your vision — properties offering nearly 10,000 square feet under roof combined with residential comfort are exceptionally rare in this area, making this a unique opportunity to own scale, functionality, and future potential already in place.
Bedrooms
3
Bathrooms
3
Square Feet
2,600
Lot Size
125,017.2 sqft
Year Built
1975
Property Type
Single Family Residence
Days on Market
1
HOA Fee
N/A
Garage Total
6
MLS #
MP26051278
Interior Features
Beamed Ceilings, Breakfast Bar, Built In Features, Solid Surface Counters, All Bedrooms Down
Flooring
Carpet, Laminate
Appliances
Dishwasher, Electric Range, Microwave, Refrigerator
Laundry
Inside, Laundry Room
Main Level Bedrooms
3
Main Level Bathrooms
2
Cooling
Central Air
Heating
Central
Total Parking Spaces
6
Garage Spaces
6
Lot Features
Front Yard, Gentle Sloping
Sewer
Septic Tank
Water Source
Well
Foothills
$0
| Rating | School Name | ||
|---|---|---|---|
| No school data available for this area. | |||
Balanced market
Avg. time on market
This is a Balanced Market. Homes are selling at a moderate pace.
Flood Risk
Minimal — not in a FEMA flood zone
Wildfire Risk
Moderate — near wildland-urban interface
Heat Risk
Low — moderate summer temperatures
Earthquake Risk
Southern California seismic zone
Based on price, location, and features
Topfind Realty, DRE # 02240815, is a licensed real estate broker in California. Topfind Realty pledges to support the Fair Housing Act and adhere to Equal Housing Opportunity laws.
Copyright © 2026 Topfind Realty. All Rights Reserved.