




26542 Sun City, Menifee, CA 92586
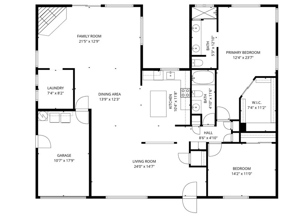
$40,000 PRICE REDUCTION from original list price– Don’t miss this incredible opportunity! This beautifully updated home is one of the finest in the highly sought-after 55+ Sun City Civic HOA community. Be sure to view all photos, including stunning drone imagery. PROPERTY HIGHLIGHTS: This elegant single-story home sits right on the golf course, offering peaceful and scenic views. It features new flooring, fresh paint, a completely remodeled kitchen, and brand-new appliances. Enjoy year-round comfort with central heating and air, along with two skylights that bring in abundant natural light. The home includes a one-car attached garage plus an extended, enclosed covered carport with space for another vehicle plus a golf cart.t. Washer and dryer hookups are conveniently located in the garage. Residents can walk to expansive community amenities, including multiple pools, a large theater, game room, amphitheater, pickleball courts, and over 20 social clubs. This vibrant senior community also offers dances, contests, and a wide variety of activities. HOA dues are exceptionally low at just $37.50 per month, billed annually. Interior Features: Upon entry, you’re welcomed by a spacious great room with sightlines extending to the golf course. The home feels fresh and new throughout. It includes a large living room, a generous family room with a fireplace, and a well-sized dining area. A cozy office space is located adjacent to the family room. The fully renovated kitchen boasts a center island, new appliances, and a skylight. The primary bedroom is spacious and private, featuring a large window overlooking the golf course, a walk-in closet with mirrored doors, and a beautifully updated en-suite bathroom with dual sinks and a newly tiled walk-in shower complete with a seat and grab bar. The second bedroom is also generously sized with mirrored closet doors. Both bedrooms and main living areas are equipped with ceiling fans. The secondary bathroom includes a shower-over-tub and a skylight. Outdoor Living: The backyard is a tranquil retreat with three Alumawood patio covers and direct golf course views—perfect for relaxing with your morning coffee or enjoying the serene surroundings. This home truly has it all—you need to see it in person to fully appreciate it before it’s gone!
Bedrooms
2
Bathrooms
2
Square Feet
1,530
Lot Size
6,970 sqft
Year Built
1964
Property Type
Single Family Residence
Days on Market
71
HOA Fee
$37.5/mo
Garage Total
1
MLS #
PW26035528
Interior Features
Breakfast Bar, Built In Features, Block Walls, Ceiling Fans, All Bedrooms Down, Bedroom On Main Level, Main Level Primary, Primary Suite, Walk In Closets
Fireplace
Family Room
Appliances
Dishwasher, Electric Oven, Electric Range, Free Standing Range, Disposal, Microwave
Laundry
In Garage
Main Level Bedrooms
2
Main Level Bathrooms
2
Cooling
Central Air
Heating
Central, Forced Air
Total Parking Spaces
1
Garage Spaces
1
Attached Garage
Yes
Parking Features
Attached Carport, Concrete, Carport, Direct Access, Door Single, Driveway, Garage Faces Front, Garage, Golf Cart Garage, Garage Door Opener, Paved, One Space, See Remarks
Roof
Composition
Lot Features
Six To Ten Units Acre, Front Yard, Level, On Golf Course
Pool Features
Fenced, Gunite, In Ground, Lap, Association
Sewer
Public Sewer
Water Source
Public
Bocce Court, Billiard Room, Call For Rules, Clubhouse, Controlled Access, Fitness Center, Fire Pit, Game Room, Meeting Room, Management, Barbecue, Picnic Area, Playground, Pickleball, Pool, Recreation Room
Biking, Curbs, Golf, Hiking, Mountainous, Park, Storm Drains, Street Lights, Sidewalks
$0
| Rating | School Name | ||
|---|---|---|---|
| No school data available for this area. | |||
Balanced market
Avg. time on market
This is a Balanced Market. Homes are selling at a moderate pace.
Flood Risk
Minimal — not in a FEMA flood zone
Wildfire Risk
Moderate — near wildland-urban interface
Heat Risk
Low — moderate summer temperatures
Earthquake Risk
Southern California seismic zone
Based on price, location, and features
Topfind Realty, DRE # 02240815, is a licensed real estate broker in California. Topfind Realty pledges to support the Fair Housing Act and adhere to Equal Housing Opportunity laws.
Copyright © 2026 Topfind Realty. All Rights Reserved.