




7530 Wells Ave, Newark, CA 94560
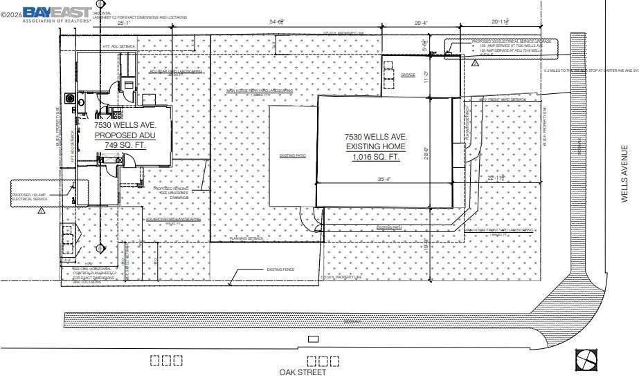
Do not miss this opportunity to purchase a home in the tri-cities area ready to build ADU plans! This home features 3 bedrooms and 1.5 bathrooms, solid surface countertops in kitchen and full size washer and dryer. The backyard is spacious for outdoor entertainment. Additionally, there are plans for a 2 bed / 2 bath ADU already approved through the city of Newark - to be sold with the property. This allows the new owner to add 749 square feet of living space - you can occupy one home and rent the ADU for additional income. The home is conveniently located near Dumbarton, 880, and San Mateo Bridge. Offer Due Date: Monday, March 23, 2026 by 2:00 pm
Bedrooms
3
Bathrooms
2
Square Feet
1,015
Lot Size
8,000 sqft
Year Built
1957
Property Type
Single Family Residence
Days on Market
6
HOA Fee
N/A
Garage Total
1
MLS #
41127588
Flooring
Carpet, Tile
Fireplace
Living Room
Appliances
Gas Water Heater, Dryer, Washer
Heating
Forced Air
Total Parking Spaces
1
Garage Spaces
1
Attached Garage
Yes
Parking Features
Garage
Patio & Porch
Patio
Construction
Stucco
Foundation
Slab
Roof
Shingle
Lot Features
Back Yard, Corner Lot, Front Yard
Sewer
Public Sewer
$0
| Rating | School Name | ||
|---|---|---|---|
| No school data available for this area. | |||
Balanced market
Avg. time on market
This is a Balanced Market. Homes are selling at a moderate pace.
Flood Risk
Minimal — not in a FEMA flood zone
Wildfire Risk
Moderate — near wildland-urban interface
Heat Risk
Low — moderate summer temperatures
Earthquake Risk
Southern California seismic zone
Based on price, location, and features
Topfind Realty, DRE # 02240815, is a licensed real estate broker in California. Topfind Realty pledges to support the Fair Housing Act and adhere to Equal Housing Opportunity laws.
Copyright © 2026 Topfind Realty. All Rights Reserved.