




1205 E D, Ontario, CA 91764
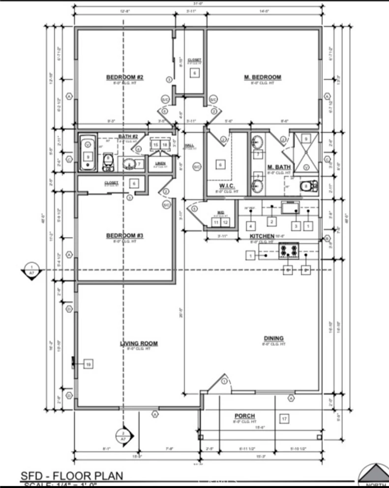
Development opportunity in Ontario with approved plans for a remodel, addition, and new Accessory Dwelling Unit (ADU). The project proposes expansion of the existing single-family residence to approximately 1,463 sq. ft., including a 635 sq. ft. addition and new covered entry. Plans also include conversion of the existing 400 sq. ft. detached two-car garage into a 998 sq. ft. detached ADU featuring 3 bedrooms and 2 bathrooms, along with a small addition and covered entry. The ADU is designed with separate water, electrical, and gas meters, providing flexibility for future occupancy or rental potential. This offering allows a buyer to acquire a property with plans already reviewed through the City process, significantly reducing development timelines.
Bedrooms
3
Bathrooms
1
Square Feet
816
Lot Size
7,500 sqft
Year Built
1941
Property Type
Single Family Residence
Days on Market
2
HOA Fee
N/A
Garage Total
2
MLS #
CV26051851
Laundry
In Garage
Main Level Bedrooms
3
Main Level Bathrooms
1
Total Parking Spaces
2
Garage Spaces
2
Lot Features
Level
Sewer
Public Sewer
Water Source
Public
Curbs, Street Lights
$0
| Rating | School Name | ||
|---|---|---|---|
| No school data available for this area. | |||
Balanced market
Avg. time on market
This is a Balanced Market. Homes are selling at a moderate pace.
Flood Risk
Minimal — not in a FEMA flood zone
Wildfire Risk
Moderate — near wildland-urban interface
Heat Risk
Low — moderate summer temperatures
Earthquake Risk
Southern California seismic zone
Based on price, location, and features
Topfind Realty, DRE # 02240815, is a licensed real estate broker in California. Topfind Realty pledges to support the Fair Housing Act and adhere to Equal Housing Opportunity laws.
Copyright © 2026 Topfind Realty. All Rights Reserved.