




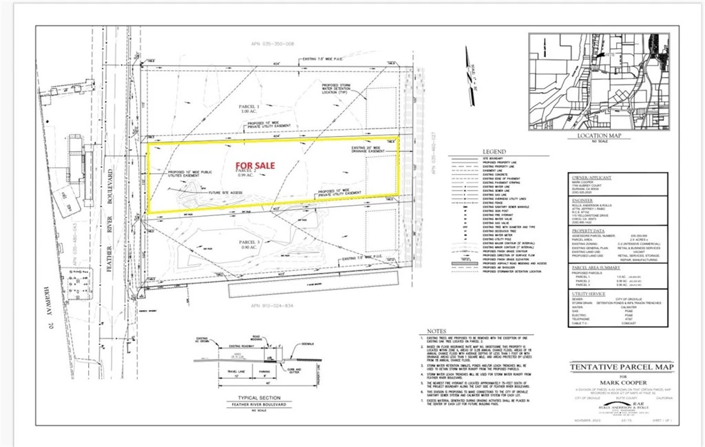
0 Feather River Blvd,, Oroville, CA 95965
Excellent opportunity Built to suite and owner is willing to carry. Owner WANTS TO SELL 1 ACRE and has approved map zoned for commercial with Planned Development overlay. It already has CAL Water Meter and the sewer is also available on the same side. Close to Georgia Pacific and HW 70. Excellent Highway exposure! Close to Walmart. Easy access to highway and services.
Bedrooms
0
Bathrooms
0
Lot Size
43,560 sqft
Days on Market
180
HOA Fee
N/A
MLS #
SN25214478
Lot Features
Zero To One Unit Acre
Water Source
Public
Valley
$0
| Rating | School Name | ||
|---|---|---|---|
| No school data available for this area. | |||
Balanced market
Avg. time on market
This is a Balanced Market. Homes are selling at a moderate pace.
Flood Risk
Minimal — not in a FEMA flood zone
Wildfire Risk
Moderate — near wildland-urban interface
Heat Risk
Low — moderate summer temperatures
Earthquake Risk
Southern California seismic zone
Based on price, location, and features
Topfind Realty, DRE # 02240815, is a licensed real estate broker in California. Topfind Realty pledges to support the Fair Housing Act and adhere to Equal Housing Opportunity laws.
Copyright © 2026 Topfind Realty. All Rights Reserved.