




3269 Muir, Other, CA 95469
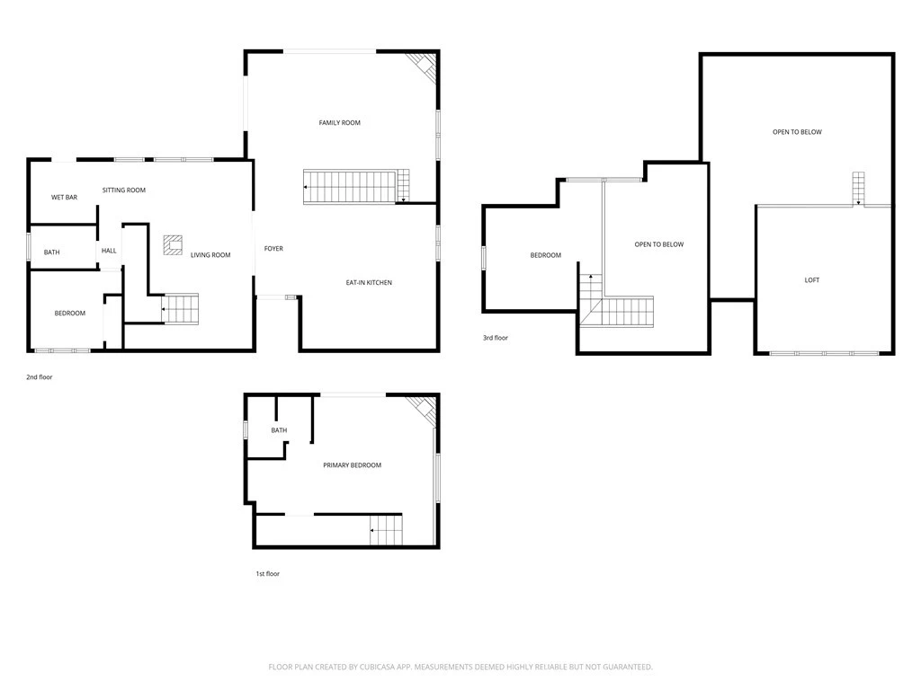
Wake up to the sound of flowing water and step into a lifestyle rooted in peace, privacy, and nature. This 2,766 sq. ft. cabin overlooks the clearest stretch of Salmon Creek, offering a truly magical setting. Designed with intention, the home features a metal roof, striking custom windows, and an open layout that brings people together effortlessly. The lower-level primary suite creates easy living, while two loft areas provide space to unwind, create, or host. With 5.55 acres across multiple legal parcels, there's room here to expand your vision or simply enjoy the freedom of open land. A massive metal shop with three roll up doors can house all of your toys. Just five minutes to the lake where you can enjoy fishing, boating and more. This property is set within the gated Lake Pillsbury Ranch community, where you'll have access to a swimming pond, BBQ area, playground, tennis courts, boat storage, horse stables, and wide-open space to explore. This is more than a home, it's an off-grid retreat where recreation, relaxation, and connection to nature come naturally.
Bedrooms
3
Bathrooms
2
Square Feet
2,766
Lot Size
241,758 sqft
Year Built
1980
Property Type
Cabin
Days on Market
2
HOA Fee
$1627.4/mo
Garage Total
6
MLS #
LC26074616
Interior Features
Beamed Ceilings, Cathedral Ceilings, Eat In Kitchen, Main Level Primary, Primary Suite
Flooring
Stone, Wood
Fireplace
Living Room, Primary Bedroom
Appliances
Free Standing Range, Gas Oven, Refrigerator
Laundry
Washer Hookup
Main Level Bedrooms
1
Main Level Bathrooms
1
Heating
Propane, Wood Stove
Total Parking Spaces
6
Garage Spaces
6
Parking Features
Boat, Pull Through, Rv Access Parking
Patio & Porch
Deck
Security
Carbon Monoxide Detectors, Gated Community
Construction
Wood Siding
Roof
Metal
Lot Features
Sloped Down
Spa Features
Private
Sewer
Septic Tank
Water Source
Private
Barbecue, Playground, Tennis Courts
Park, Gated
$0
| Rating | School Name | ||
|---|---|---|---|
| No school data available for this area. | |||
Balanced market
Avg. time on market
This is a Balanced Market. Homes are selling at a moderate pace.
Flood Risk
Minimal — not in a FEMA flood zone
Wildfire Risk
Moderate — near wildland-urban interface
Heat Risk
Low — moderate summer temperatures
Earthquake Risk
Southern California seismic zone
Based on price, location, and features
Topfind Realty, DRE # 02240815, is a licensed real estate broker in California. Topfind Realty pledges to support the Fair Housing Act and adhere to Equal Housing Opportunity laws.
Copyright © 2026 Topfind Realty. All Rights Reserved.