




41 Verde Way, Palm Desert, CA 92260
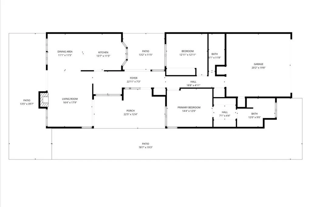
An exceptional find in the heart of Palm Desert. RARE unobstructed view home--designed with a unique blend of modern elegance and desert luxury. Experience elevated, panoramic greenbelt and mountain views. Property is infused with natural light. High ceilings accentuate the airy open feel--resulting in a floorplan that works as well for group entertaining as intimate get togethers. Private courtyard entry is perfect for outdoor dining--window pass-thru to interior wet bar with beverage fridge, extensive cabinetry & countertop space--even a built-in BBQ station! Area enhanced by lush, yet low-maintenance plantings. Welcoming double door entry. Bricked atrium with slider access lends an extra indoor/outdoor feeling. High ceiling soars over large living room and dining area. Focal point fireplace with unique wood mantle is flanked by walls of glass that frame stunning greenbelt views and invite to outdoor seating areas. Spacious, gourmet eat-in kitchen with bay window boasts stainless appliances & extended bar top seating. Tons of cabinetry, storage and prep space! Primary suite with spa-like light-filled bath. Updated bathrooms offer newer counter tops, modern sinks, hardware and custom tile showers. Interior laundry closet. Countless upgrades enhance the living experience. Recessed lighting, Plantation-style shutters, oversized 'on the diagonal' neutral tile flooring & carpet in bedrooms. Both patios feature automatic shade awnings. Newer hot water tank and HVAC system. Attached 2-car garage. Location of home is ideal--near a community pool and spa! Be a part of Silver Sands Racquet Club--an active community of 256 condos surrounded by beautiful landscape, offset by the San Jacinto Mountains. A vast array of resident activities available including 15 community pools/spas, lit tennis & pickleball courts. Clubhouse w/fitness center. HOA includes gated entry, cable, internet, trash, exterior maintenance & roof coverage. Truly move-in ready. Designer furnishing package available for separate negotiation. Stop searching and START living!
Bedrooms
2
Bathrooms
2
Square Feet
1,418
Lot Size
3,920 sqft
Year Built
1983
Property Type
Condominium
Days on Market
29
HOA Fee
$879/mo
Garage Total
2
MLS #
219142641DA
Interior Features
Wet Bar, Breakfast Bar, Separate Formal Dining Room, Open Floorplan, Recessed Lighting, Storage, Atrium, Main Level Primary, Primary Suite
Flooring
Carpet, Tile
Fireplace
Gas Starter, Living Room
Appliances
Dishwasher, Electric Range, Disposal, Microwave, Refrigerator, Self Cleaning Oven, Water Heater
Laundry
Laundry Closet
Cooling
Central Air, Gas, Heat Pump
Heating
Central, Forced Air, Fireplaces, Heat Pump, Natural Gas
Total Parking Spaces
4
Garage Spaces
2
Open Parking Spaces
2
Attached Garage
Yes
Parking Features
Direct Access, Driveway, Garage, Garage Door Opener, Guest
Patio & Porch
Enclosed
Fencing
Privacy, Stucco Wall
Security
Gated Community
Construction
Stucco
Foundation
Slab
Roof
Elastomeric, Tile
Lot Features
Close To Clubhouse, Drip Irrigation Bubblers, Greenbelt, Lawn, Landscaped, Planned Unit Development, Sprinklers Timer, Sprinkler System
Pool Features
Community, Gunite, Electric Heat, In Ground
Spa Features
Community, Gunite, Heated, In Ground
Clubhouse, Controlled Access, Fitness Center, Maintenance Grounds, Pet Restrictions, Tennis Courts, Trash, Cable Tv
Gated, Pool
$0
| Rating | School Name |
|---|---|
9 | GreatSchools High (Demo) public School • ratio 22:1 |
7 | Valley View Elementary (Demo) public School • ratio 18:1 |
6 | Lincoln Middle School (Demo) public School • ratio 20:1 |
NR | St. Mary Example Academy (Demo) private School • ratio 12:1 |
Balanced market
Avg. time on market
This is a Balanced Market. Homes are selling at a moderate pace.
Based on price, location, and features
Topfind Realty, DRE # 02240815, is a licensed real estate broker in California. Topfind Realty pledges to support the Fair Housing Act and adhere to Equal Housing Opportunity laws.
Copyright © 2026 Topfind Realty. All Rights Reserved.