




1019 Maple Park Dr, Paradise, CA 95969
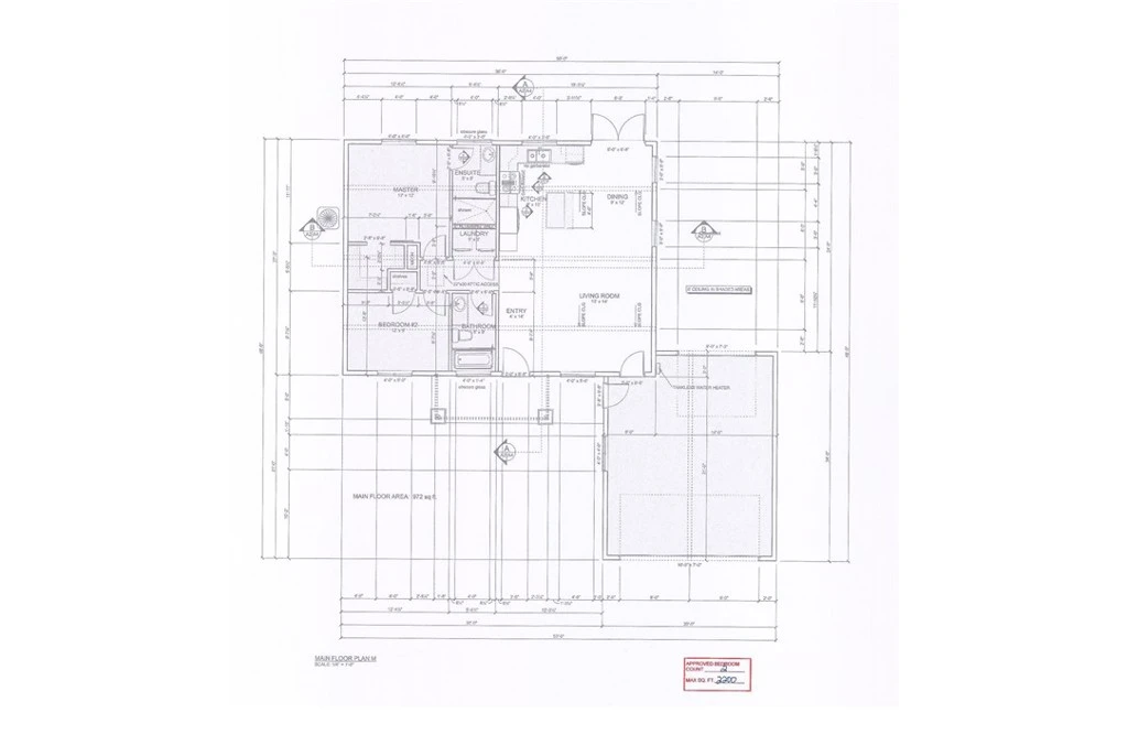
Prime Opportunity: Ready-to-Build Residential Lot with Approved Plans! Looking for a head start on your next residential project? This spacious 10,000 SF lot presents an exceptional turnkey opportunity for investors, developers, or owner-users looking to bring a new home to life—without the usual delays of starting from scratch! With approved plans already in place for a 972 SF, 2 bed/2 bath home plus an attached 462 SF garage, this property is primed for rapid development. Even better, the foundation and septic system are already installed, allowing you to fast-track construction and move toward completion much sooner than a ground-up build.
Bedrooms
0
Bathrooms
0
Lot Size
10,019 sqft
Days on Market
136
HOA Fee
N/A
MLS #
SN25135919
Lot Features
Zero To One Unit Acre
Water Source
Public
Rural
$0
| Rating | School Name | ||
|---|---|---|---|
| No school data available for this area. | |||
Balanced market
Avg. time on market
This is a Balanced Market. Homes are selling at a moderate pace.
Flood Risk
Minimal — not in a FEMA flood zone
Wildfire Risk
Moderate — near wildland-urban interface
Heat Risk
Low — moderate summer temperatures
Earthquake Risk
Southern California seismic zone
Based on price, location, and features
Topfind Realty, DRE # 02240815, is a licensed real estate broker in California. Topfind Realty pledges to support the Fair Housing Act and adhere to Equal Housing Opportunity laws.
Copyright © 2026 Topfind Realty. All Rights Reserved.