




8636 Rancho Cerona Drive, Paramount, CA 90723
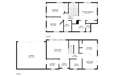
Welcome to this beautifully upgraded 4 bedroom, 2.5 bathroom home offering approximately 1,658 square feet of comfortable living space in a family-oriented neighborhood. Thoughtfully updated throughout, this home blends modern upgrades with functional design and inviting indoor-outdoor living. The remodeled kitchen anchors the home, while laminate flooring runs through the living room, hallway, and all four bedrooms. The primary bedroom features a custom wall-to-wall closet with built-in dresser drawers, and additional touches include new bedroom doors, stylish sliding barn doors, new windows, shutters throughout, and a newer insulated garage door. The home was painted a few years ago and offers central A/C and heating for year-round comfort. The private backyard is designed for entertaining, featuring a large covered patio, a cozy fire pit area, and plumbing with hot and cold water plus a sewer drain ready for a future BBQ island. The yard has been fully cemented with drainage to the front yard to help prevent flooding. Fourteen privacy trees provide added seclusion from Somerset Blvd., and a cinder block wall and dual gate allow both privacy and easy backyard access. Additional highlights include attic and above-garage storage, generous street parking, and the flexibility to use the two-car garage as extra living or hobby space. This well-maintained home offers privacy, practicality, and a great space to gather and entertain.
Bedrooms
4
Bathrooms
3
Square Feet
1,658
Lot Size
6,170 sqft
Year Built
1987
Property Type
Single Family Residence
Days on Market
9
HOA Fee
N/A
Garage Total
2
MLS #
PW26046615
Flooring
Laminate
Fireplace
Living Room
Laundry
In Garage
Main Level Bathrooms
1
Cooling
Central Air
Heating
Central
Total Parking Spaces
2
Garage Spaces
2
Attached Garage
Yes
Lot Features
Back Yard, Front Yard
Sewer
Public Sewer
Water Source
Public
Rural
$0
| Rating | School Name | ||
|---|---|---|---|
| No school data available for this area. | |||
Balanced market
Avg. time on market
This is a Balanced Market. Homes are selling at a moderate pace.
Based on price, location, and features
Topfind Realty, DRE # 02240815, is a licensed real estate broker in California. Topfind Realty pledges to support the Fair Housing Act and adhere to Equal Housing Opportunity laws.
Copyright © 2026 Topfind Realty. All Rights Reserved.