




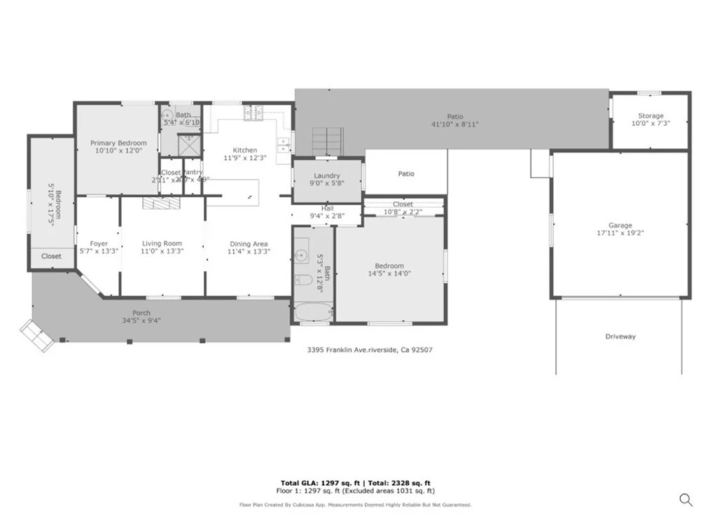
3395 Franklin Avenue, Riverside, CA 92507
Welcome to a historic and large corner turnkey home, centrally located minutes from Downtown Riverside, the University of California Riverside (UCR), Riverside Community College (RCC), and the Iconic Mission Inn. This vintage one-story 3 bedroom and 2 bath gated home has a large corner lot with excellent curb appeal. Many renovations bring the best of this house's past and present. It includes new paint interior & exterior, an entirely remodeled kitchen with a walk-in pantry, and recessed lighting. The entire home has been completely renovated with tile, updated windows, and a central A/C. The exterior area presents a new patio backyard, reconstructed porch, a newly installed asphalt driveway, and foundation. The home's roof has been replaced to last for many years to come. The detached garage and storage shed holds great rental earnings potential as an investment opportunity. It can be converted to a secondary residential Accessory Dwelling Unit (ADU) ie. studio. This traditional home's key features with its large lot and easy access to major freeways, the Metrolink, schools, shops, dining, and more creates a perfect space for multigenerational living.
Bedrooms
3
Bathrooms
2
Square Feet
1,297
Lot Size
5,663 sqft
Year Built
1903
Property Type
Single Family Residence
Days on Market
12
HOA Fee
N/A
Garage Total
1
MLS #
SR26012094
Interior Features
Breakfast Bar, Ceramic Counters, Crown Molding, Separate Formal Dining Room, Granite Counters, Recessed Lighting, Walk In Pantry
Flooring
Tile
Fireplace
Living Room
Appliances
Gas Range, Gas Water Heater
Laundry
Gas Dryer Hookup
Main Level Bedrooms
3
Main Level Bathrooms
2
Cooling
Central Air
Heating
Central
Total Parking Spaces
1
Garage Spaces
1
Parking Features
Driveway, Garage Faces Front, Garage
Patio & Porch
Front Porch, Patio
Fencing
Chain Link
Roof
Composition
Lot Features
Sprinkler System
Sewer
Public Sewer
Water Source
Public
Curbs
$0
| Rating | School Name | ||
|---|---|---|---|
| No school data available for this area. | |||
Balanced market
Avg. time on market
This is a Balanced Market. Homes are selling at a moderate pace.
Flood Risk
Minimal — not in a FEMA flood zone
Wildfire Risk
Moderate — near wildland-urban interface
Heat Risk
Low — moderate summer temperatures
Earthquake Risk
Southern California seismic zone
Based on price, location, and features
Topfind Realty, DRE # 02240815, is a licensed real estate broker in California. Topfind Realty pledges to support the Fair Housing Act and adhere to Equal Housing Opportunity laws.
Copyright © 2026 Topfind Realty. All Rights Reserved.