




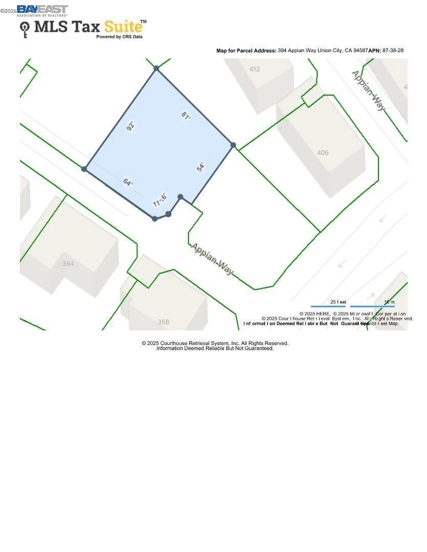
394 Appian Way, Union City, CA 94587
Build Your Dream Home – Rare Residential Lot Opportunity. Exceptional opportunity to purchase a 6,250 sq ft residential lot at 394 Appian Way in Union City. Vacant buildable parcels in established Bay Area neighborhoods are increasingly rare. This property offers the potential to design and build approximately a 2,800–4,000 sq ft custom residence (buyer to verify with city planning and zoning). Ideal opportunity for a builder, developer, investor, or owner-builder looking to create a new custom home in a desirable East Bay location. Imagine a thoughtfully designed residence featuring open-concept living spaces, modern architecture, and indoor-outdoor California living tailored to your lifestyle. Conveniently located near parks, shopping, schools, and major commuter routes serving Silicon Valley and the greater East Bay.
Bathrooms
0
Lot Size
6,520 sqft
Days on Market
19
HOA Fee
N/A
MLS #
41126535
$0
| Rating | School Name | ||
|---|---|---|---|
| No school data available for this area. | |||
Balanced market
Avg. time on market
This is a Balanced Market. Homes are selling at a moderate pace.
Based on price, location, and features
Topfind Realty, DRE # 02240815, is a licensed real estate broker in California. Topfind Realty pledges to support the Fair Housing Act and adhere to Equal Housing Opportunity laws.
Copyright © 2026 Topfind Realty. All Rights Reserved.