




510 Venice Way, Venice, CA 90291
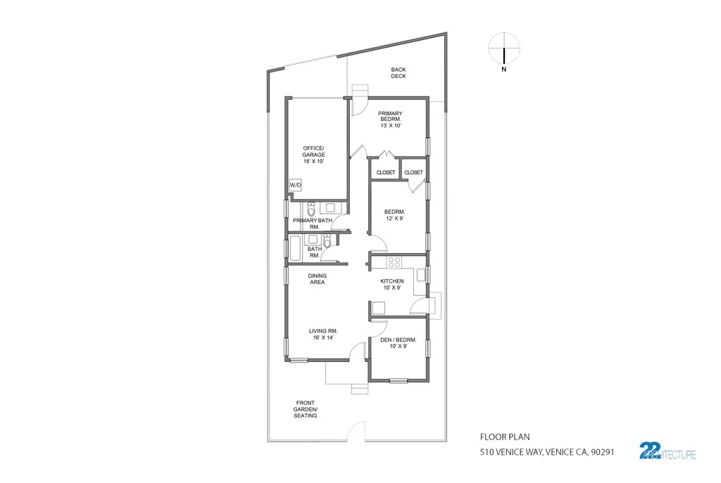
Fully reimagined by 22 Architecture, this circa 1953 3BD/2BA Mid-Century Modern bungalow blends timeless design with modern livability. Ideally located near Erewhon, Gjelina, Abbot Kinney, the Venice Canals, and the beach, the home offers an effortless connection to the best of coastal living. Renovated with permits, the residence features new baths, a reconfigured layout, and updated kitchen with Italian tile, custom quartz, and premium appliances. Spa-inspired bathrooms include a Hansgrohe rain shower, Toto bidet, and deep soaking tub. The finished garage/office with central heating, motorized glass door, laundry, and 240V EV outlet offers flexible use. The rear wall was reconfigured to meet code-required parking dimensions, with plans and permits available for review. Outdoors, teak fencing, built-in seating, and lush landscaping create a private garden retreat. Set on a rare 30-foot-wide lot, the property offers a broader footprint and greater design flexibility than most Venice parcels, allowing for a more open floor plan, enhanced light, and the potential for future architectural expansion.
Bedrooms
3
Bathrooms
2
Square Feet
1,130
Lot Size
1,963 sqft
Year Built
1953
Property Type
Single Family Residence
Days on Market
112
HOA Fee
N/A
MLS #
25607513
Interior Features
Crown Molding, Separate Formal Dining Room
Flooring
Wood
Appliances
Dishwasher, Gas Range, Refrigerator
Laundry
In Garage
Heating
Central
Total Parking Spaces
1
Attached Garage
Yes
Patio & Porch
Deck, Porch
Fencing
Wood, Wrought Iron
Security
Gated Community
Construction
Stucco, Wood Siding
Foundation
Raised
Gated
$0
| Rating | School Name | ||
|---|---|---|---|
| No school data available for this area. | |||
Balanced market
Avg. time on market
This is a Balanced Market. Homes are selling at a moderate pace.
Flood Risk
Minimal — not in a FEMA flood zone
Wildfire Risk
Moderate — near wildland-urban interface
Heat Risk
Low — moderate summer temperatures
Earthquake Risk
Southern California seismic zone
Based on price, location, and features
Topfind Realty, DRE # 02240815, is a licensed real estate broker in California. Topfind Realty pledges to support the Fair Housing Act and adhere to Equal Housing Opportunity laws.
Copyright © 2026 Topfind Realty. All Rights Reserved.