




22552 Uhea, Woodland Hills, CA 91364
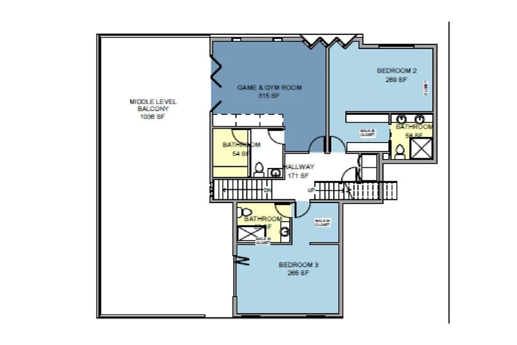
Prime RTI Development Opportunity in a prestigious area of of Woodland Hills. An extraordinary opportunity to build your DREAM HOME in one of San Fernando Valley's most exclusive multi-million dollar neighborhoods- The Heights. This exceptional view lot offers sweeping vistas and is surrounded by luxury estates. The current owner has invested significant time, expertise, and capital to secure Ready-To-Issue permits, saving you years of planning, architectural design, engineering, and the notoriously complex approval process required in this highly regulated area. RTI properties in this area of Woodland Hills are exceedingly rare due to strict zoning requirements and this parcel eliminates the uncertainty and delays, allowing a buyer to break ground almost immediately.
Lot Size
17,790 sqft
Days on Market
0
HOA Fee
N/A
MLS #
SR26035706
Lot Features
Item01 Unit Acre
Water Source
Public
Suburban
$0
| Rating | School Name | ||
|---|---|---|---|
| No school data available for this area. | |||
Balanced market
Avg. time on market
This is a Balanced Market. Homes are selling at a moderate pace.
Flood Risk
Minimal — not in a FEMA flood zone
Wildfire Risk
Moderate — near wildland-urban interface
Heat Risk
Low — moderate summer temperatures
Earthquake Risk
Southern California seismic zone
Based on price, location, and features
Topfind Realty, DRE # 02240815, is a licensed real estate broker in California. Topfind Realty pledges to support the Fair Housing Act and adhere to Equal Housing Opportunity laws.
Copyright © 2026 Topfind Realty. All Rights Reserved.