




4260 N Canoga Avenue, Woodland Hills, CA 91364
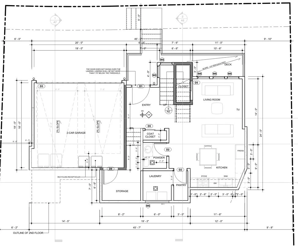
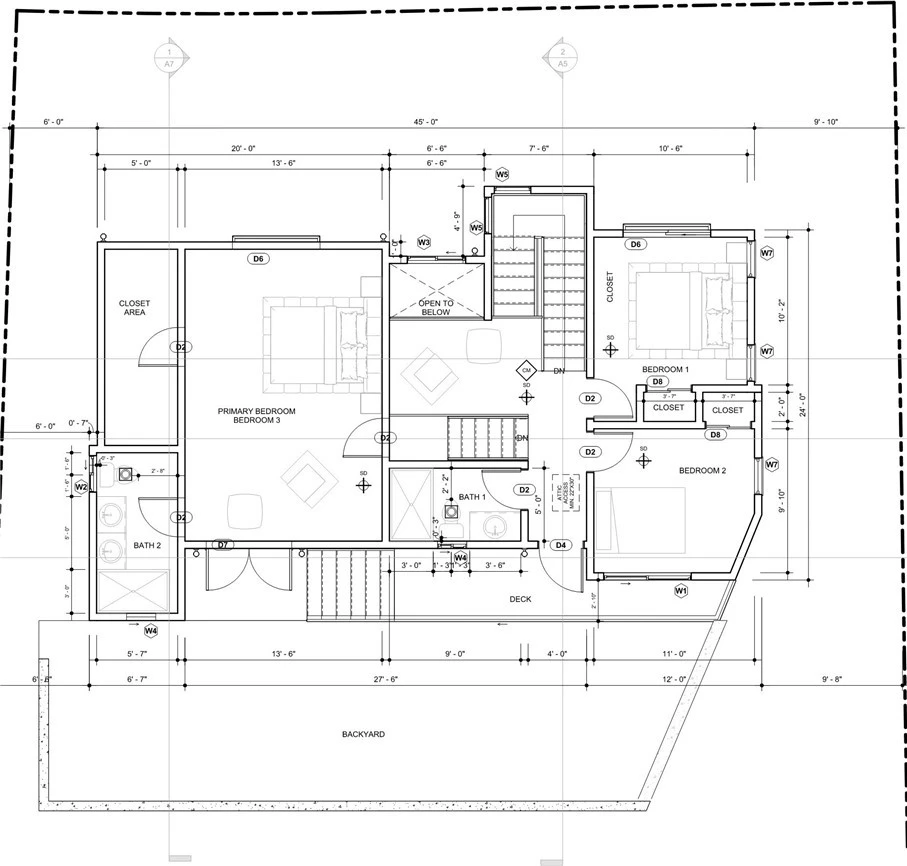
Vacant Lot with **Permits Pulled and Fees Paid** – 4260 Canoga Avenue (Lot No. 5255, Cut 1 & 2) Excellent opportunity to build a beautifully designed single-family residence in a highly desirable Woodland Hills neighborhood. The property includes a full set of well-designed, approved plans for a stylish home with approximately 1,957 sq. ft. of building area (1,691 sq. ft. RFA), including an attached garage. The lot is approximately 5,027 sq. ft. (per the tax assessor) and is situated on an uphill site — no costly caisson work required. All approvals have been secured through the **Mulholland Corridor Design Review Board**, and the **architectural, structural, grading, and landscape plans are included**. Construction can begin immediately. This is a great opportunity to develop in a prime location surrounded by quality homes. The proposed design blends modern style with the natural hillside setting, creating a perfect balance of comfort and elegance. **Note:** Buyer to verify all information independently. Also see the listings for 4254 and 4256 Canoga Avenue for nearby opportunities.
Bedrooms
2
Bathrooms
3
Square Feet
1,691
Lot Size
5,027.92 sqft
Year Built
2026
Property Type
Single Family Residence
Days on Market
1
HOA Fee
N/A
MLS #
SR26050483
Interior Features
All Bedrooms Up
Laundry
Inside
Main Level Bathrooms
1
Cooling
Central Air
Total Parking Spaces
380
Attached Garage
Yes
Lot Features
Sloped Down, Front Yard
Sewer
Public Sewer
Water Source
Public
Valley
$0
| Rating | School Name | ||
|---|---|---|---|
| No school data available for this area. | |||
Balanced market
Avg. time on market
This is a Balanced Market. Homes are selling at a moderate pace.
Flood Risk
Minimal — not in a FEMA flood zone
Wildfire Risk
Moderate — near wildland-urban interface
Heat Risk
Low — moderate summer temperatures
Earthquake Risk
Southern California seismic zone
Based on price, location, and features
Topfind Realty, DRE # 02240815, is a licensed real estate broker in California. Topfind Realty pledges to support the Fair Housing Act and adhere to Equal Housing Opportunity laws.
Copyright © 2026 Topfind Realty. All Rights Reserved.