
23653 Lexington Court, Laguna Niguel, CA 92677
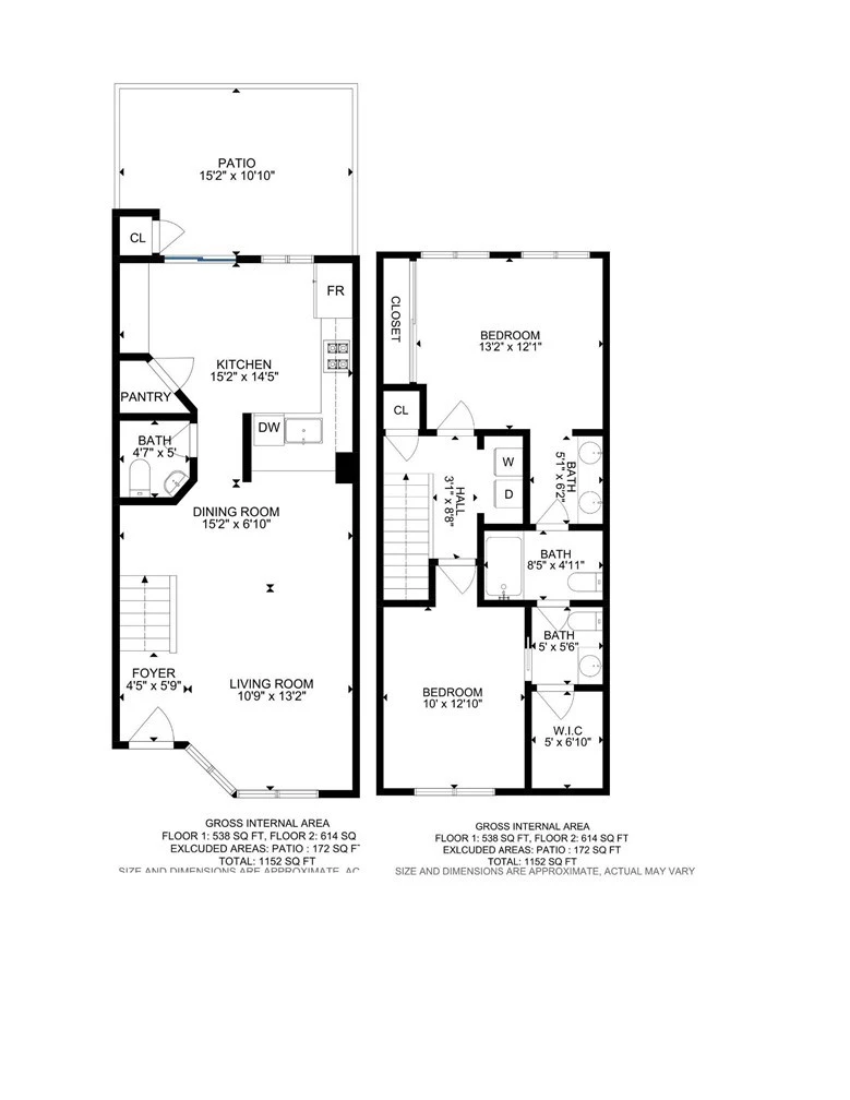
Welcome to the Hampton Village community. Enjoy coastal living in this well maintained and updated 2-bedroom condominium. Enjoy the convenience of being minutes from beautiful beaches, major freeways, and nearby shopping centers for all your daily essentials. The property is a short walk to Albertson's, Starbucks, CVS and other restaurants and shops through a convenient gated access door. With approximately 1,152 square feet of thoughtfully designed space, this serene two-level home offers privacy with no neighbors above or below. The living, dining and entry have stylish well-maintained porcelain tile. The updated kitchen features recessed lighting, a walk-in pantry, separate bar counter with an abundance of cabinetry, newer appliances, quartz countertops, stylish subway tile backsplash, and direct access to the private patio. The sliding doors have been updated with tinted windows for additional privacy. The inviting living space has 2 large picture windows that flood the home with natural light. The main floor is complimented with a powder room with ceramic tile flooring for convenience and there is plenty of storage space in the under stair area. The second floor offers 2 bedrooms with bamboo wood flooring. Each bedroom has its own private vanity and toilet. One of the upstairs bathrooms has dual sinks while the other offers a single sink and walk-in closet. The bathrooms have been updated with newer porcelain tile flooring. The washer and dryer are located upstairs and are included with the sale of the property. Additional upgrades include a newer A/C unit along with e-piped plumbing throughout the unit for added peace of mind. Beyond the home itself, the community is undergoing an exciting transformation with fresh exterior paint, updated landscaping, new garage doors, new asphalt and a beautifully redesigned pool area. Don’t miss this opportunity to own a stylish, move-in-ready condominium in an exceptional community.
Bedrooms
2
Bathrooms
3
Square Feet
1,152
Lot Size
335,790 sqft
Year Built
1987
Property Type
Condominium
HOA Fee
$458.39/mo
Garage Total
1
MLS #
PW26046822
Interior Features
Ceiling Fans, Separate Formal Dining Room, All Bedrooms Up
Flooring
Bamboo, Tile
Appliances
Dishwasher, Gas Range, Gas Water Heater, Microwave, Refrigerator, Range Hood, Water Heater, Dryer, Washer
Laundry
Inside, Upper Level
Cooling
Central Air
Heating
Central
Patio & Porch
Concrete, Enclosed
| Rating | School Name | ||
|---|---|---|---|
| No school data available for this area. | |||
Based on price, location, and features
Topfind Realty, DRE # 02240815, is a licensed real estate broker in California. Topfind Realty pledges to support the Fair Housing Act and adhere to Equal Housing Opportunity laws.
Copyright © 2026 Topfind Realty. All Rights Reserved.